5.0
Рейтинг в Яндекс на основе более 33 оценок
Пенза, Карпинского 139
ПН-ПТ 10:00–20:00
СБ 10:00–16:00

Klassik SD-11 | 166

Klassik SD-11 | 166

  • Площадь Площадь : 166.00 м²
  • Размеры Размеры : 11 x 8.5 м
  • Стоимость Стоимость : от 6 300 000 ₽

🏡 Klassik SD-11 166 — просторный каркасный дом для комфортной жизни большой семьи

Проект Klassik SD-11 166 — это современный двухэтажный каркасный дом площадью 166 м², созданный для тех, кто ценит комфорт, стиль и практичность. Его архитектура в классическом стиле с большими окнами и аккуратными террасами выглядит современно и элегантно, а продуманная планировка идеально подходит для постоянного проживания.

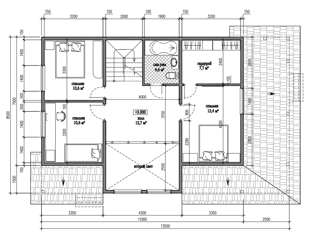
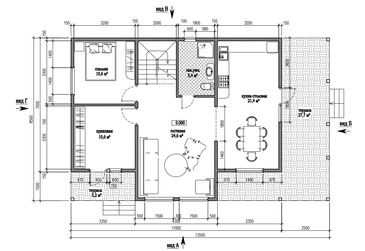
📐 Планировка дома:

Первый этаж:

  • Просторная гостиная (24,6 м²) с выходом на террасу 27,7 м².
  • Кухня-столовая (21,4 м²) с большим окном.
  • Спальня 10,6 м² — отличный вариант для кабинета или гостевой.
  • Санузел и удобная прихожая.

Второй этаж:

  • Три спальни (по 10,6–13,4 м²) для всей семьи.
  • Просторный холл 12,7 м² с выходом во «второй свет».
  • Гардеробная 7,7 м² и ванная комната.

✨ Особенности проекта:

  • Большие панорамные окна и «второй свет» делают пространство светлым и просторным.
  • Рациональная планировка — удобное зонирование для семьи из 4–6 человек.
  • Две террасы для отдыха и семейных встреч.
  • Энергоэффективная каркасная технология — тепло, уют и экономия на отоплении.

🎨 Варианты фасадов:

Мы предлагаем разные решения в одном стиле: от тёплых древесных оттенков до строгого современного минимализма. Благодаря этому каждый заказчик сможет подобрать вариант, который подчеркнёт индивидуальность его дома.

✅ Преимущества:

  • Быстрое строительство — дом под ключ за несколько месяцев.
  • Возможность адаптировать планировку и дизайн под ваши пожелания.
  • Стильный внешний вид, который впишется и в природу, и в современный посёлок.

Компания Stroim Doma Penza (SDP58) более 15 лет строит каркасные дома и гарантирует качество, проверенное временем.

Наши контакты

Напишите нам

Задайте любой вопрос, и наши специалисты помогут найти лучшее решение для вашего будущего дома!