5.0
Рейтинг в Яндекс на основе более 33 оценок
Пенза, Карпинского 139
ПН-ПТ 10:00–20:00
СБ 10:00–16:00

Klassik SD-12 | 125

Klassik SD-12 | 125

  • Площадь Площадь : 140.00 м²
  • Размеры Размеры : 7.5 x 12 м
  • Стоимость Стоимость : от 6 100 000 ₽

🏡 Klassik SD-12 | 125 — современный двухэтажный каркасный дом для семьи и уюта

Проект Klassik SD-12 | 125 — это просторный каркасный дом общей площадью 125 м², идеально подходящий для семьи, ценящей комфорт, свет и функциональность. Архитектура дома сочетает современный стиль и классические формы: большие окна, веранды и аккуратные фасады делают его гармоничным и уютным.

📐 Планировка дома:

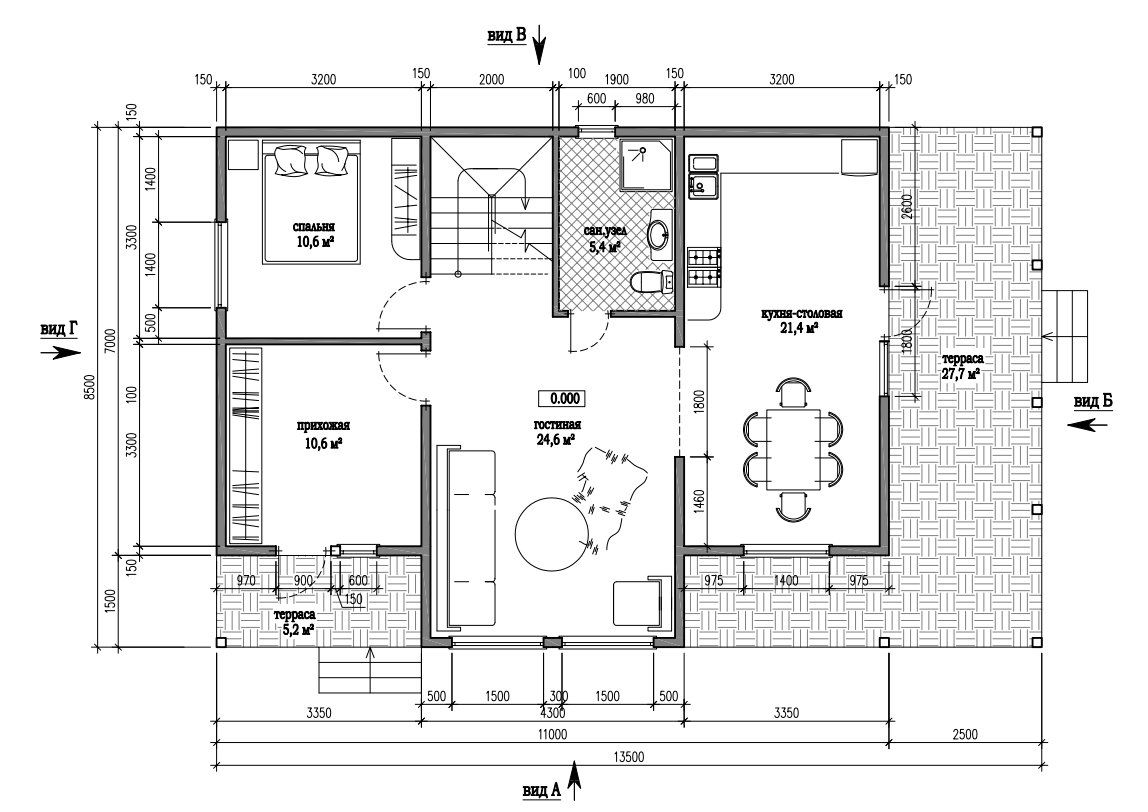
Первый этаж:

  • Просторная гостиная 24,6 м² с выходом на террасу 27,7 м².
  • Уютная кухня-столовая 21,4 м² с панорамным видом.
  • Спальня 10,6 м² (идеальна для гостей или кабинета).
  • Санузел и прихожая.

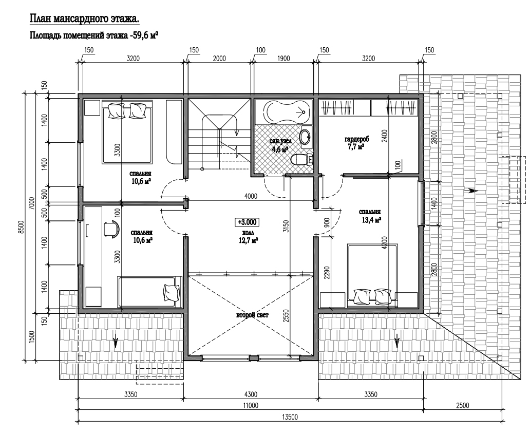
Второй этаж:

  • Три спальни (10,6–13,4 м²) для всех членов семьи.
  • Удобный холл 12,7 м² и гардеробная.
  • Ванная комната.
  • Второй свет, создающий ощущение простора и наполненности светом.

✨ Особенности проекта:

  • Оптимальная площадь — достаточно места для жизни и отдыха.
  • Большие окна обеспечивают естественное освещение.
  • Две террасы для завтраков на свежем воздухе и уютных вечеров.
  • Каркасная технология — энергоэффективность и долговечность.

🎨 Разные варианты фасадов:

Проект доступен в нескольких дизайнерских решениях: светлые оттенки для классического образа, тёмные — для современного стиля. Благодаря этому каждый клиент может выбрать вариант, подходящий именно ему.

✅ Преимущества:

  • Быстрое строительство под ключ — от нескольких месяцев.
  • Возможность адаптировать проект под индивидуальные запросы.
  • Доступная стоимость эксплуатации.

✨ Klassik SD-12 | 125 — это надёжный и современный дом, который станет уютным семейным гнездом на многие годы.

Компания Stroim Doma Penza (SDP58) более 15 лет строит качественные каркасные дома в Пензенской и Мордовской областях, создавая доступное и комфортное жильё.

Наши контакты

Напишите нам

Задайте любой вопрос, и наши специалисты помогут найти лучшее решение для вашего будущего дома!