5.0
Рейтинг в Яндекс на основе более 33 оценок
Пенза, Карпинского 139
ПН-ПТ 10:00–20:00
СБ 10:00–16:00

Klassik SD-1 86

Klassik SD-1 86

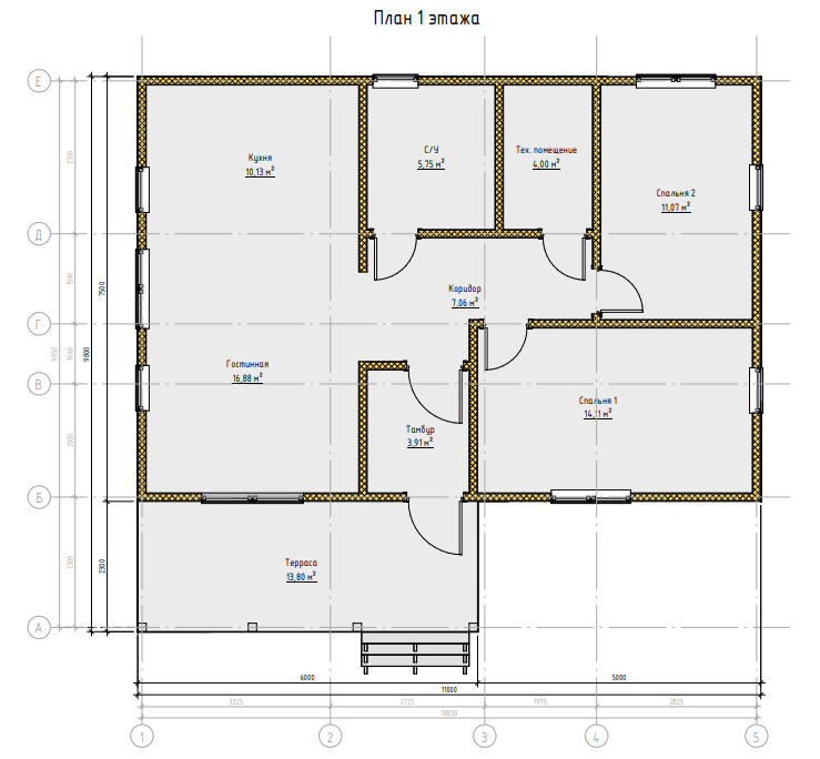
  • Площадь Площадь : 86.70 м²
  • Размеры Размеры : 10.85 x 9.65 м
  • Стоимость Стоимость : от 4 550 000 ₽
от 4 400 000 ₽ Количество ограничено

🏡 Klassik SD-1 86 — стильный и практичный каркасный дом для комфортной жизни

Проект Klassik SD-1 86 — это современный одноэтажный каркасный дом площадью 86 м², который идеально подойдёт для небольшой семьи или загородного отдыха. Его архитектура сочетает простоту и элегантность, а планировка продумана так, чтобы каждый метр был максимально функциональным.

📐 Планировка дома:

  • Кухня (10 м²) и просторная гостиная (16,9 м²) для уютных семейных вечеров.
  • Две удобные спальни (11 и 14 м²).
  • Санузел 5,7 м² и отдельное техническое помещение.
  • Тамбур и коридор для удобного входа и хранения.
  • Просторная терраса 13,8 м² для отдыха на свежем воздухе.

✨ Особенности проекта:

  • Компактные размеры при отличной вместимости.
  • Светлые помещения благодаря большим окнам.
  • Практичная планировка для семьи из 3–4 человек.
  • Каркасная технология обеспечивает энергоэффективность и надёжность.

🎨 Разные варианты фасадов:

Дом можно выполнить в различных стилевых решениях: светлые тона для классического образа или тёмные акценты для современного минимализма. Выбирайте дизайн, который подчеркнёт ваш вкус и гармонично впишется в участок.

✅ Преимущества:

  • Быстрое строительство под ключ (всего несколько месяцев).
  • Возможность корректировки планировки и дизайна под ваши потребности.
  • Доступная стоимость и низкие расходы на эксплуатацию.
✨ Klassik SD-1 86 — это надёжный и уютный дом, который станет вашим семейным гнездом.

Компания Stroim Doma Penza (SDP58) более 15 лет строит качественные каркасные дома и помогает воплотить мечту о доступном и современном жилье.

Наши контакты

Напишите нам

Задайте любой вопрос, и наши специалисты помогут найти лучшее решение для вашего будущего дома!