5.0
Рейтинг в Яндекс на основе более 33 оценок
Пенза, Карпинского 139
ПН-ПТ 10:00–20:00
СБ 10:00–16:00

Klassik SD-3 109В

Klassik SD-3 109В

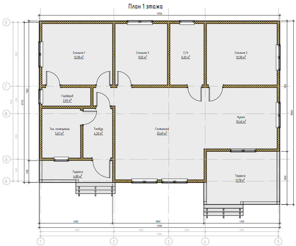
  • Площадь Площадь : 109.70 м²
  • Размеры Размеры : 13.15 x 8.77 м
  • Стоимость Стоимость : от 5 200 000 ₽
от 5 050 000 ₽ Количество ограничено

Проект Klassik SD-3 109В — это современный одноэтажный каркасный дом общей площадью 109 м², который сочетает в себе функциональность, стиль и уют. Его планировка идеально подойдёт для семьи из 3–5 человек, а внешний вид гармонично впишется как в загородный участок, так и в дачный посёлок.

📐 Планировка продумана до мелочей:

  • Просторная гостиная 25,6 м² — центр семейной жизни.
  • Уютная кухня 13,4 м², где удобно готовить и собираться за столом.
  • Три спальни (по 9,5–12,9 м²) — для родителей, детей и гостей.
  • Большой санузел 6,2 м² и отдельное техническое помещение 5,6 м².
  • Гардеробная для хранения вещей и удобный тамбур при входе.
  • Две террасы — для утреннего кофе и вечернего отдыха с семьёй.

🎨 Варианты исполнения фасада:

Мы предлагаем разные варианты дизайна в одном стиле: светлые и тёмные оттенки, отделка «под дерево» или с контрастными акцентами. Вы сможете выбрать тот образ дома, который подчеркнёт вашу индивидуальность.

✅ Преимущества проекта:

  • Каркасная технология — энергоэффективность, надёжность и долговечность.
  • Уютный одноэтажный формат — всё необходимое расположено на одном уровне.
  • Быстрые сроки строительства — всего несколько месяцев.
  • Возможность адаптации проекта под ваши пожелания.

✨ Klassik SD-3 109В — это современный и удобный дом, который станет настоящим семейным гнездом.

Компания Stroim Doma Penza (SDP58) более 15 лет успешно строит каркасные дома в Пензенской и Мордовской областях, предлагая своим клиентам качество и надежность.

Наши контакты

Напишите нам

Задайте любой вопрос, и наши специалисты помогут найти лучшее решение для вашего будущего дома!